Cinzia
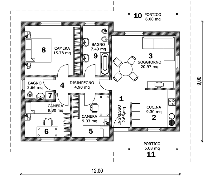
Casa unifamiliare piccola e confortevole su un unico piano. Per la sua semplicità si adatta a qualsiasi ambientazione.Misure esterne del fabbricato:
| Piano terra | mq. 100,50 |
| Totale | mq. 100,50 |
| (A x B x h) | |
| 12,00 x 9,00 x 3,20 | |
Piano terra
| 1 | ingresso |
| 2 | angolo cottura |
| 3 | soggiorno |
| 4 | disimpegno |
| 5 | camera |
| 6 | camera |
| 7 | bagno - lavanderia |
| 8 | camera |
| 9 | bagno |
| 10 | portico |
| 11 | portico |







