Lara
Casa unifamiliare di stile mediterraneo molto spaziosa. I tetti a più livelli donano all'edificio uno stile proprio.
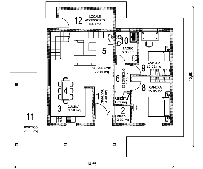
Misure esterne del fabbricato:
| Piano terra |
mq. 113,70 |
| Piano primo |
mq.104,20 |
| Totale |
mq. 217,90 |
| (A x B x h) |
| 14,55 x 12,80 x 5,00 |
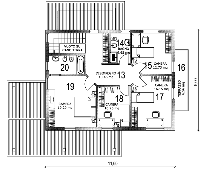
Piano terra |
Piano primo |
| 1 |
ingresso |
13 |
disimpegno |
| 2 |
ripostiglio |
14 |
bagno |
| 3 |
angolo cottura |
15 |
camera |
| 4 |
sala da pranzo |
16 |
terrazzo |
| 5 |
soggiorno |
17 |
camera |
| 6 |
disimpegno |
18 |
camera |
| 7 |
ripostiglio |
19 |
camera |
| 8 |
camera |
20 |
bagno |
| 9 |
camera |
|
|
| 10 |
bagno |
|
|
| 11 |
portico |
|
|
| 12 |
locale accessorio |
|
|