Silvia
Casa unifamiliare dallo stile particolare. Le ampie superfici vetrate rendono l’abitazione luminosa e mettono a contatto i residenti con l’ambiente in cui si colloca l’edificio.Misure esterne del fabbricato:
| Piano terra | mq. 86,20 |
| Piano Primo | mq. 86,20 |
| Totale | mq. 172,40 |
| (A x B x h) | |
| 11,60 x 10,10 x 4,00 | |
Piano terra |
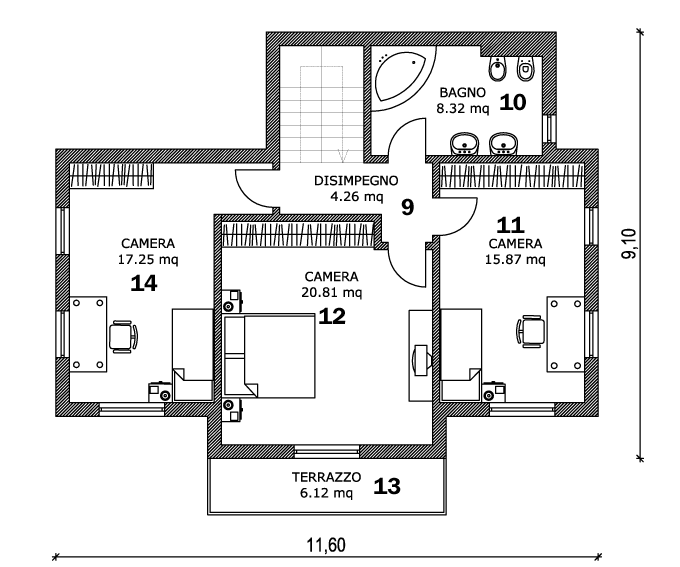
Piano primo |
||
| 1 | ingresso | 9 | disimpegno |
| 2 | lavanderia | 10 | bagno |
| 3 | disimpegno | 11 | camera |
| 4 | bagno | 12 | camera |
| 5 | sala da pranzo | 13 | terrazzo |
| 6 | cucina | 14 | camera |
| 7 | soggiorno | ||
| 8 | portico | ||









