Carmen
Casa unifamiliare molto spaziosa. Ideale per coloro che desiderano avere vani ariosi, pieni di luce per godere del panorama circostante.Misure esterne del fabbricato:
| Piano terra | mq. 225,7 |
| Totale | mq. 225,7 |
| (A x B x h) | |
| 18,50 x 12,20 x 6,10 | |
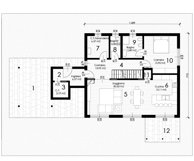
Piano terra |
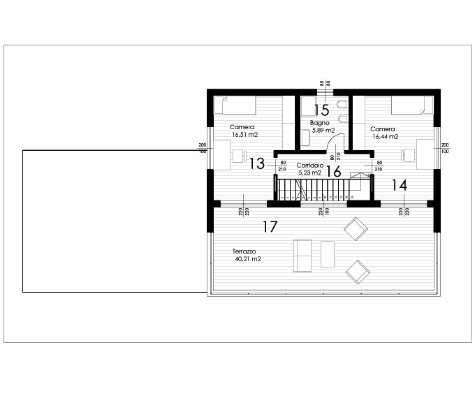
Piano primo |
||
| 1 | portico | 13 | camera |
| 2 | ingresso | 14 | camera |
| 3 | centrale termica | 15 | bagno |
| 4 | corridoio | 16 | corridoio |
| 5 | soggiorno - pranzo | 17 | terrazzo |
| 6 | cucina | ||
| 7 | lavanderia | ||
| 8 | bagno | ||
| 9 | bagno | 10 | camera | 11 | ripostiglio | 12 | pergola |









