Rosanna
Casa residenziale di stile particolare, a pianta irregolare, stravagante. E’ la casa ideale per tutti coloro che vogliono mettere in evidenza il proprio stile.Misure esterne del fabbricato:
| Piano terra | mq. 132,50 |
| Piano primo | mq. 70,00 |
| Totale | mq. 202,50 |
| (A x B x h) | |
| 14,60 x 13,90 x 3,70 | |
Piano terra |
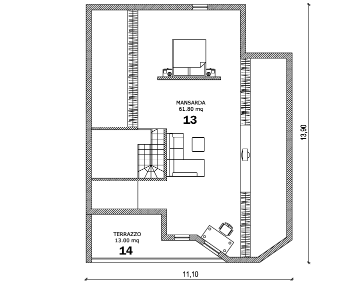
Piano primo |
||
| 1 | ingresso | 13 | mansarda |
| 2 | soggiorno | 14 | terrazzo |
| 3 | sala da pranzo | ||
| 4 | cucina | ||
| 5 | disimpegno | ||
| 6 | bagno | ||
| 7 | disimpegno | ||
| 8 | camera | ||
| 9 | camera | ||
| 10 | bagno | ||
| 11 | studio | ||
| 12 | portico | ||






