Breda
Questa casa in stile mediterraneo vi affascinerà con la sua forma inconsueta e la sua funzionalità. Tutto il comfort su un unico piano.
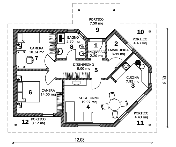
Misure esterne del fabbricato:
| Piano terra | mq. 86,40 |
| Totale | mq. 86,40 |
| A x B | |
| 12,08 x 8,50 | |
Piano terra
| 1 | ingresso |
| 2 | centrale termica - lavanderia |
| 3 | angolo cottura |
| 4 | soggiorno |
| 5 | disimpegno |
| 6 | camera |
| 7 | camera |
| 8 | bagno |
| 9 | portico d'ingresso |
| 10 | portico |
| 11 | portico |
| 12 | portico |








