Petra
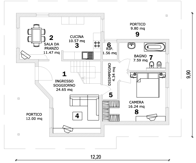
Casa unifamiliare confortevole con pianta irregolare, ampio terrazzo, portico e tetti a più livelli. La particolarità è il legno a vista.Misure esterne del fabbricato:
| Piano terra | mq. 91,80 |
| Piano primo | mq. 56,45 |
| Totale | mq. 148,25 |
| (A x B x h) | |
| 12,20 x 9,90 x 4,90 | |
Piano terra |
Piano primo |
||
| 1 | ingresso | 10 | disimpegno |
| 2 | sala da pranzo | 11 | camera |
| 3 | angolo cottura | 12 | bagno |
| 4 | soggiorno | 13 | camera |
| 5 | disimpegno | 14 | terrazzo |
| 6 | centrale termica | ||
| 7 | bagno | ||
| 8 | camera | ||
| 9 | portici | ||









