Clara
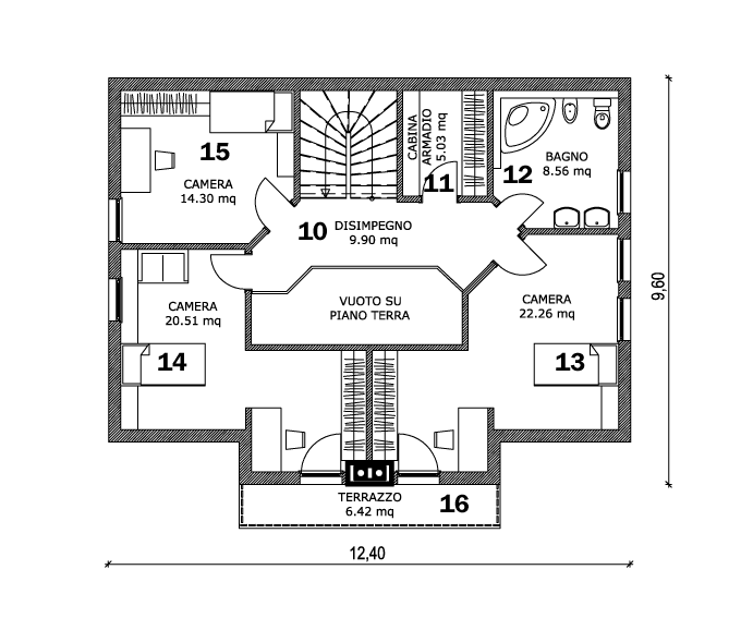
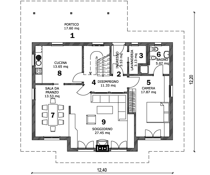
Casa unifamiliare molto spaziosa. Ideale per coloro che desiderano avere vani ariosi, pieni di luce per godere del panorama circostante. Il soppalco sul soggiorno dà alla casa un fascino particolare.
Misure esterne del fabbricato:
| Piano terra |
mq. 112,40 |
| Piano primo |
mq. 112,40 |
| Totale |
mq. 224,80 |
| (A x B x h) |
| 12,40 x 12,20 x 4,60 |
Piano terra |
Piano primo |
| 1 |
portico |
10 |
soppalco |
| 2 |
ingresso |
11 |
ripostiglio |
| 3 |
ripostiglio |
12 |
bagno |
| 4 |
disimpegno |
13 |
camera |
| 5 |
camera |
14 |
camera |
| 6 |
bagno |
15 |
camera |
| 7 |
sala da pranzo |
16 |
terrazzo |
| 8 |
cucina |
|
|
| 9 |
soggiorno |
|
|