Veronica
Casa unifamiliare molto spaziosa in stile moderno. Un soppalco interno valorizza lo spazio donando fascino agli interni.
Misure esterne del fabbricato:
| Piano terra | mq. 156 |
| Primo piano | mq. 55,50 |
| Totale | mq. 211,50 |
| (A x B x h) | |
| 14,08 x 11,08 x 4,96 | |
10camera 11pergola
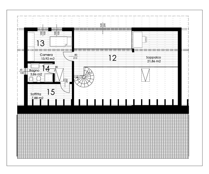
Piano terra |
Piano primo |
||
| 1 | ingresso | 12 | soppalco |
| 2 | camera | 13 | camera |
| 3 | soggiorno | 14 | bagno |
| 4 | pranzo | 15 | soffitta |
| 5 | cucina | ||
| 6 | bagno | ||
| 7 | disimpegno | ||
| 8 | camera | ||
| 9 | bagno | ||









