Niki
La casa si sviluppa su piani sfalsati per creare una netta separazione tra la zona notte e la zona giorno.Misure esterne del fabbricato:
| Piano terra | mq. 113,10 |
| Totale | mq. 113,10 |
| (A x B x h) | |
| 12,70 x 11,80 x 3,75 | |
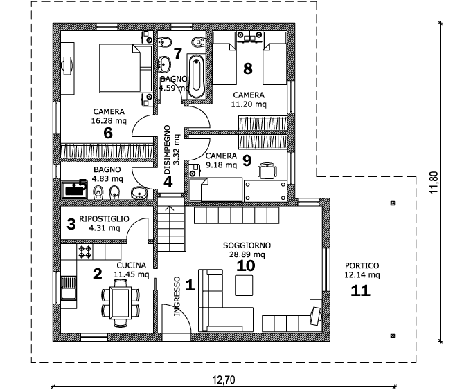
Piano terra
| 1 | ingresso |
| 2 | cucina |
| 3 | ripostiglio |
| 4 | disimpegno |
| 5 | bagno con doccia |
| 6 | camera |
| 7 | bagno con vasca |
| 8 | camera |
| 9 | camera |
| 10 | soggiorno |
| 11 | portico |








