Marta
Piccola ma confortevole, la sentirete subito vostra per l’ottimo utilizzo dello spazio. Una casetta propria per un prezzo vantaggioso.Misure esterne del fabbricato:
| Piano terra | mq. 63,91 |
| Piano primo | mq.63,91 |
| Totale | mq. 127,82 |
| (A x B x h) | |
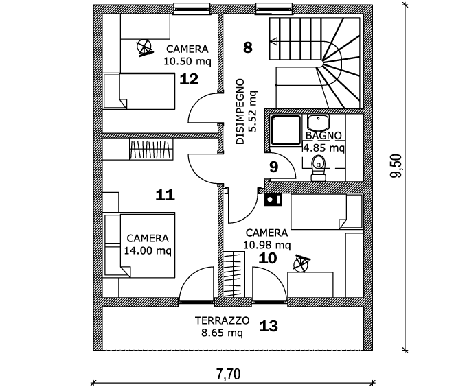
| 7,70 x 9,50 x 4,00 | |
Piano terra |
Piano primo |
||
| 1 | ingresso | 8 | disimpegno |
| 2 | disimpegno | 9 | bagno con doccia |
| 3 | bagno con vasca | 10 | camera |
| 4 | angolo cottura | 11 | camera |
| 5 | soggiorno | 12 | camera |
| 6 | camera | 13 | terrazzo |
| 7 | portico | ||









