Tiziana
In stile mediterraneo e a pianta irregolare, ideale per una famiglia di 4 persone, che ama vivere su un unico piano a contatto diretto con la natura.Misure esterne del fabbricato:
| Piano terra | mq. 135,10 |
| Totale | mq. 135,10 |
| (A x B x h) | |
| 16,36 x 11,30 x 3,14 | |
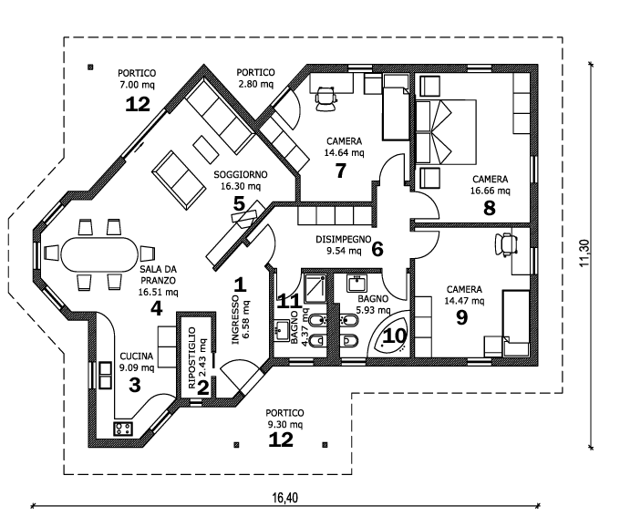
Piano terra
| 1 | ingresso |
| 2 | centrale termica - lavanderia |
| 3 | angolo cottura |
| 4 | sala da pranzo |
| 5 | soggiorno |
| 6 | disimpegno |
| 7 | camera |
| 8 | camera |
| 9 | camera |
| 10 | bagno con vasca |
| 11 | bagno con doccia |
| 12 | portici |







